
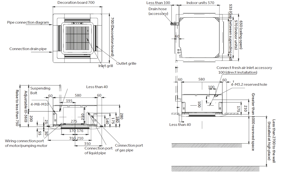
便于连接排水管和控制板

空调空气从设备的各个方向排出,为整个房间提供均匀的制冷或制热效果。

| 规格 | 机组 | MIBC-05X1EV1AD | MIBC-07X1EV1AD | MIBC-09X1EV1AD | MIBC-12X1EV1AD | MIBC-16X1EV1AD |
| 制冷量 | ||||||
| 制冷量 | 千瓦 | 1,50 | 2,20 | 2,80 | 3,60 | 4,50 |
| 供暖 | 千瓦 | 1,70 | 2,50 | 3,20 | 4,00 | 5,00 |
| 电气参数 | ||||||
| 电源 | 电压/频率 | 1/220~230/50/60 | ||||
| 通风 | ||||||
| 空气流量(高/中/低) | 立方米/小时 | 650/540/430 | 700/590/480 | |||
| 声压 (H/M/L) |
分贝(A) | 32/30/29 | 32/30/29 | 32/30/29 | 33/30/29 | 33/30/29 |
| 声功率 (H/M/L) |
分贝(A) | 46/44/43 | 46/44/43 | 46/44/43 | 47/44/43 | 47/44/43 |
| 安装 - 尺寸 | ||||||
| 净尺寸 (WxDxH) |
毫米 | 570x570x260 | ||||
| 包装单元 尺寸 (宽 x 深 x 高) |
宽x深x高 | 718x680x380 | ||||
| 净重/毛重 重量 |
千克 | 16,0/19,0 | 16,0/19,0 | 16,0/19,0 | 19,0/22,0 | 19,0/22,0 |
| 液体管道直径 | 毫米(英寸) | 6,35 (1/4) | 6,35 (1/4) | 6,35 (1/4) | 6,35 (1/4) | 6,35 (1/4) |
| 气管直径 | 毫米(英寸) | 9,52 (3/8) | 9,52 (3/8) | 9,52 (3/8) | 12,70 (1/2) | 12,70 (1/2) |
| 铆钉 | ||||||
| 型号 | MB-620KB | MB-620KB | MB-620KB | MB-620KB | MB-620KB | |
| 面板净尺寸 (宽x深x高) |
毫米 | 620x620x60 | 620x620x60 | 620x620x60 | 620x620x60 | 620x620x60 |
| 面板包装尺寸 (宽x深x高) |
毫米 | 660x660x115 | 660x660x115 | 660x660x115 | 660x660x115 | 660x660x115 |
| 面板 净重/毛重 |
公斤 | 3.1/4.8 | 3.1/4.8 | 3.1/4.8 | 3.1/4.8 | 3.1/4.8 |
MIBC-05X1EV2AD MIBC-07X1EV2AD MIBC-09X1EV2AD MIBC-12X1EV2AD MIBC-16X1EV2AD MIBC-18X1EV2AD
